Инструменты и материалы:
Электропроводка
Кабельные лотки или трубы
Розетки, выключатели
Электрический щит
Автоматические выключатели
Светильники
Тестер напряжения
Уровень
Перфоратор или дрель
Молоток
Шурупы и дюбели
Изолента
Шаги разводки электропроводки:
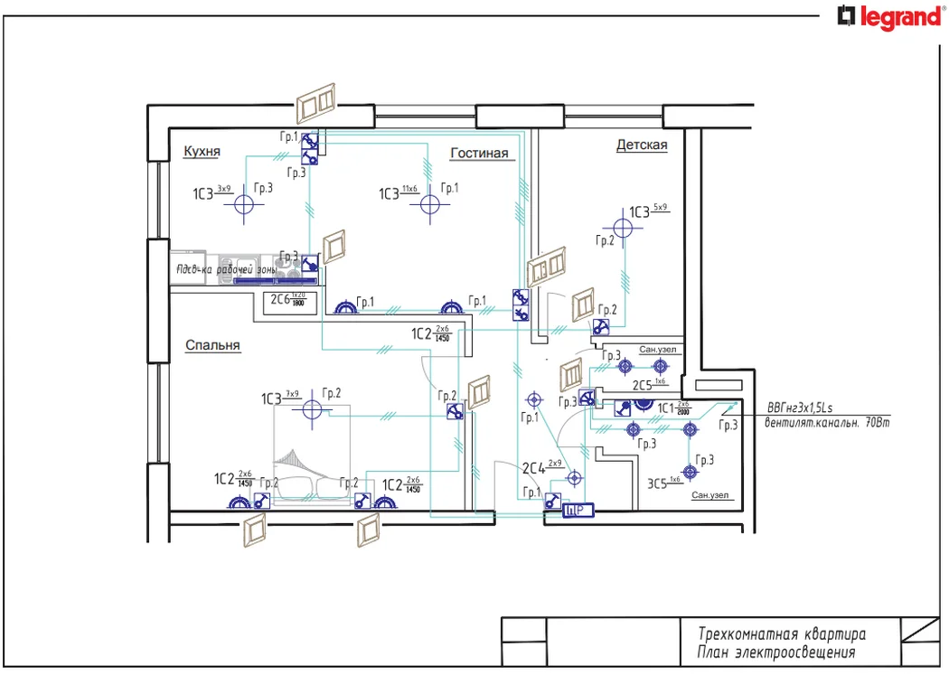
1. Планирование:
Определите расположение всех розеток, выключателей, осветительных приборов и электроприборов.
Нарисуйте план разводки проводки с указанием всех точек подключения.
Рассчитайте необходимое количество и тип электропроводки.
2. Установка кабельных лотков или труб:
Установите кабельные лотки или трубы для защиты и распределения проводов.
Используйте уровень, чтобы обеспечить ровную установку.
3. Укладка электропроводки:
Протяните электропроводку через кабельные лотки или трубы.
Зафиксируйте провода с помощью зажимов или хомутов.
Соблюдайте минимальные расстояния между проводами согласно нормам электробезопасности.
4. Монтаж розеток и выключателей:
Подготовьте подрозетники в местах установки розеток и выключателей.
Подключите провода к розеткам и выключателям в соответствии с цветовой маркировкой.
Закрепите розетки и выключатели в подрозетниках.
5. Разводка освещения:
Подключите провода к светильникам.
Установите светильники в запланированных местах.
Используйте клеммные коробки для соединения проводов в потолочных розетках.
6. Подключение к электрическому щиту:
Установите электрический щит в удобном месте.
Подключите провода от квартиры к автоматическим выключателям в щите.
Обеспечьте заземление всей проводки.
7. Тестирование:
Перед включением питания используйте тестер напряжения, чтобы убедиться в отсутствии короткого замыкания или обрыва.
Включите питание и проверьте работоспособность всех розеток, выключателей и осветительных приборов.
Меры безопасности:
Всегда отключайте питание перед работой с электропроводкой.
Носите перчатки и защитные очки.
Используйте инструмент с изолированными ручками.
Соблюдайте все нормы электробезопасности и требования строительных норм.